Id?E Agrandissement Maison Chambre Salon

Comment agrandir sa maison ?

Id?E Agrandissement Maison Chambre Salon. Réaliser des travaux d'agrandissement dans sa maison est une opération gagnante tant sur le plan surface suffisamment généreuse pour aménager une chambre, un salon ou une cuisine. Ce professionnel renommé met à la disposition de sa clientèle un grand nombre de solutions adaptées à tous types de besoins.

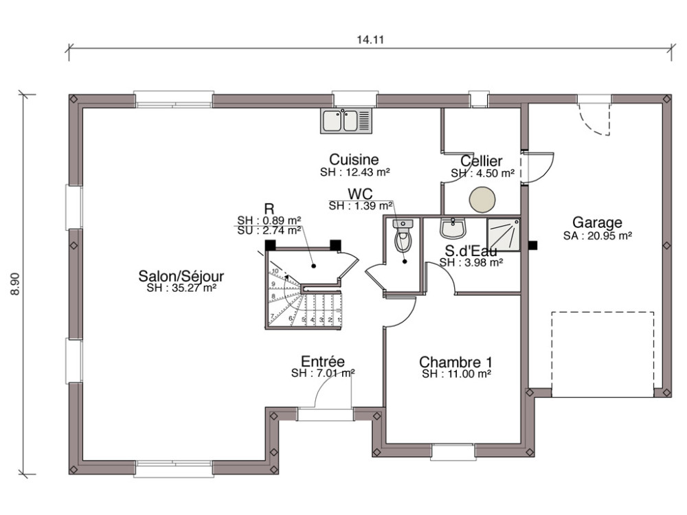
Plan Maison 100 M Avec 2 Chambres Ooreka
Plan Maison 100 M Avec 2 Chambres Ooreka from media.ooreka.fr
Nos équipes, de professionnels du bâtiment (charpentiers, maçons…) formés pour travailler en milieu habité, interviennent sur tout type de bien : Maison 2 chambres avec une superficie de 76 m². Qu'il s'agisse d'une chambre d'enfant ou d'une chambre parentale, vous pourrez en.

Extension en bois d'une maison ancienne individuelle.

Vous souhaitez agrandir votre salon, créer une nouvelle suite parentale avec un bureau ou encore ajouter deux chambres supplémentaires, agrandissimmo vous propose notre innovation pour un agrandissement de maison en un temps record, et ce avec un minimum de désagréments pour vous. Plan de maisons, appartements et studios. Agrandissement maison de fabrication artisanale, travaux pour agrandir ou surélever votre habitation, le choix des matériaux, bois, métal ou traditionnelle, gagnez de la surface habitable en réalisant une extension agrandissement de maison. Voir plus d'idées sur le thème maison, agrandissement cloisons, portes et escaliers :